Komerční park Dobřejovice I
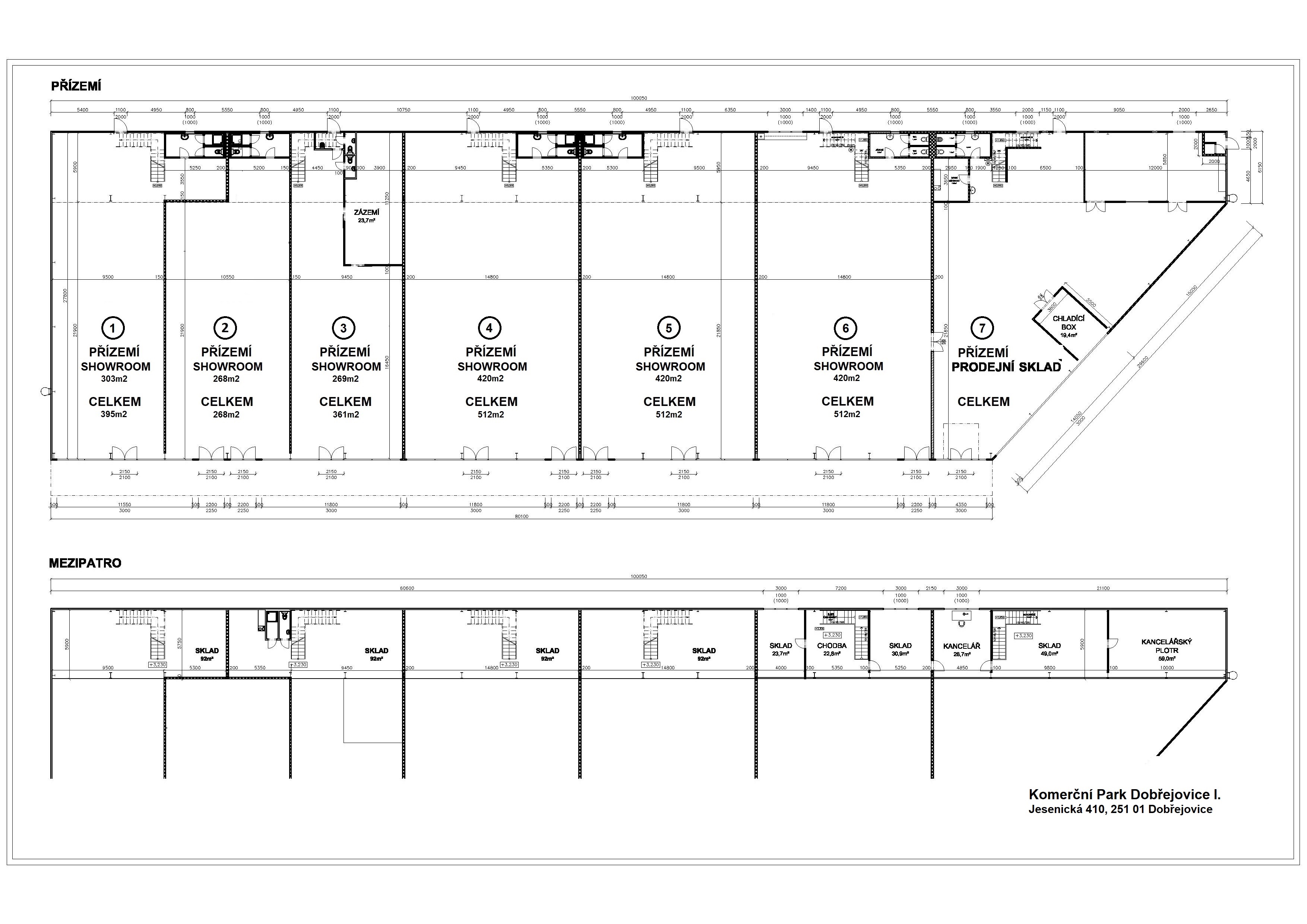
Komerční park Dobřejovice I nabízí obchodní a skladové prostory vhodné pro široké spektrum podnikatelských aktivit. Areál je určen zejména pro firmy hledající funkční a dobře dostupné zázemí s flexibilním využitím jednotlivých jednotek.
Základní informace
- Kód budovy
- KPDI
- Druhy prostor
- obchod / sklad / kombi
- Počet prostorů
- 8
- Dopravní napojení
- D0, D1
- Přístupnost areálu
- 24/7
- Parkování
- Ano
- Celková plocha budovy
- 3 392 m²
- Celková plocha areálu
- 6 666 m²
Volné prostory v budově
Aktuálně nabízíme 2 volné prostory.
Máte zájem o pronájem prostor?











