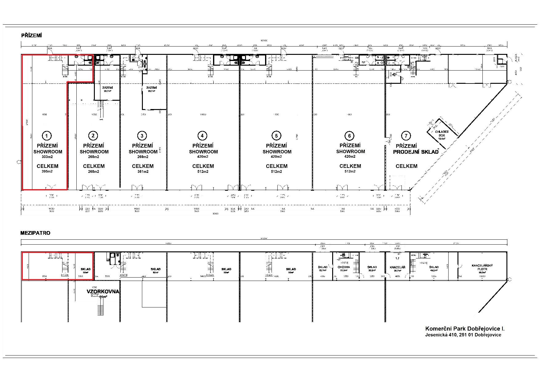
KPDI – prostor č. 1
Základní informace
- Budova
- KPDI
- Číslo prostoru
- 1
- Plocha
- 395 m²
- Druh prostoru
- obchod / sklad / kombi
- Volné od
- Ihned
- Stav
- volný
- Nájemné
- 229 Kč / m2 / měsíc
- Poplatky
- záloha 15 Kč / m2 / měsíc
- Energie
- dle skutečné spotřeby nájemce
- Kauce
- 2 x nájemné
Nabízíme k pronájmu reprezentativní obchodně skladovací prostory v komerčním parku v Dobřejovicích u Prahy. Komerční park se nachází v těsné blízkosti dalších komerčních budov, nedaleko dálnice D1 u křížení s pražským okruhem D0.
Nabízené prostory jsou vhodné jako showroom, prodejna se zázemím, výdejna e-shopu, vzorkovna, sklad, apod.
Technické parametry
- Parkování
- Ano
- Sociální zázemí
- Ano
- Sprcha
- Ano
- Vytápění
- tepelné čerpadlo
- Klimatizace
- Ano
- Ostatní
- čelní prosklené výlohy, dvojité vstupní dveře, střešní okna, zadní východ
Technické parametry
- Zateplení budovy
- Ano
- Podlaha
- betonová, 5T/m2
- Světlá výška
- 6,2 m
- Elektřina
- 220 V, 380 V
- Kamerový systém
- Ano
Jsme přímý majitel objektu, neplatíte žádnou provizi. Pro sjednání osobní prohlídky nás neváhejte kontaktovat. V případě zájmu můžeme nabídnout alternativní obchodní, nebo skladovací prostory.
Máte zájem o pronájem prostor?



















